一戸建 奥州市江刺玉里はノ木谷地売家
情報更新日:2026-05-12
| 所在地 | 間取 | 価格 | 建物延面積 | 敷地面積 |
|---|---|---|---|---|
| 岩手県 奥州市 江刺玉里字はノ木谷地 | 6DK | 300万円 | 341.56㎡ | 1202.67㎡ (公簿) |
田園風景と趣のある古民家住宅。
本物件の内容や画像等は全て現況優先とさせていただきます。各画像は参考図となります。
| 交通機関 | JR東北新幹線 水沢江刺駅徒歩148分 | ||
|---|---|---|---|
| 学区 | 奥州市立江刺ひがし小学校(1.4km)・奥州市立江刺第一中学校(6.8km) | ||
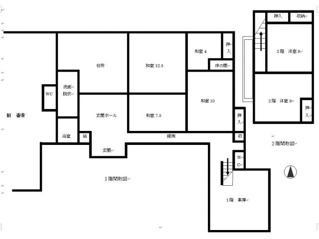
| 詳細間取 | 6DK (1階:和12.5帖×1、1階:和10帖×1、1階:和7.5帖×1、1階:和4帖×1、2階:洋9帖×1、2階:洋8帖×1、DK15帖) | ||
| 周辺施設 | 奥州市玉里地区センター:1700m、ゆうちょ銀行玉里郵便局:1500m、奥州警察署・玉里駐在所:1400m | ||
| 周辺環境 | その他費用 | 仲介手数料:330,000円 | |
| 総戸数 | 1戸 | 建物構造 | 木造 |
| 築年月 | 明治-756年1月 | 主要採光方向 | 南 |
| 駐車場 | 敷地内 可 | 地勢 | 平坦 |
| 駐車場2台 | 可 | 土地権利 | 所有権 |
| 用途地域 | 用途指定なし | 国土法届 | 不要 |
| 取引態様 | 一般媒介 | 現況 | 空家 |
| 引渡 | 即可 | 建ぺい率/容積率 | ─ / ─ |
| 地目 | 宅地 | 都市計画 | 区域外 |
| セットバック | 無 | 接道状況 | 一方(公道・東側・間口3.5m・幅員4m) |
| 私道負担 | ─ / ─ | 建築確認番号 | |
| 法令上の制限 | |||
| 設備 | バス(有 シャワー有 給湯式) トイレ(洋式 独立 簡易水洗) 上水道設備(公営) 下水道設備(汲取) 給湯(石油) 洗面化粧台(独立) 洗濯機置場 | ||
| 備考 | 建物新築年月日不詳。建物種類は居宅・畜舎。 地名において、はノ木谷地の『は』は、木へんに爪。 他に、285番地目:田2,782㎡・286番地目:田3283㎡・287番地目:田1217㎡、193番1地目:畑546㎡・196番2地目:畑145㎡・176番3地目:原野75㎡・188番2地目:原野279㎡も含む。※農地付により農業委員会の手続き必要。 増築部分の1階が車庫。 本物件は現状現況での引き渡しとなります。 増改築有 | ||
| 取扱業者 |
AVANTI ㈱ 岩手県知事免許(4)第2309号 岩手県奥州市水沢台町1-52 TEL:0197-34-1251 FAX:0197-24-6616 (一社)岩手県宅地建物取引業協会会員 東北地区不動産公正取引協議会加盟事業者 |
||










