戸建南大鐘84-41階南号室
情報更新日:2026-05-19
| 所在地 | 間取 | 月額賃料 | 専有面積 バルコニー面積 |
共益費 管理費 |
敷金 礼金 |
|---|---|---|---|---|---|
| 岩手県 奥州市 水沢字南大鐘 | 2LDK | 60,000円/月 |
51.06㎡ ─ |
─ ─ |
─ ─ |
全室フローリング☆エアコン2台付☆
本物件の内容や画像等は全て現況優先とさせていただきます。各画像は参考図となります。
| 交通機関 | JR東北本線 水沢駅 徒歩20分 | ||
|---|---|---|---|
| 学区 | 水沢南小学校(1.2km)・水沢南中学校(1.3km) | ||
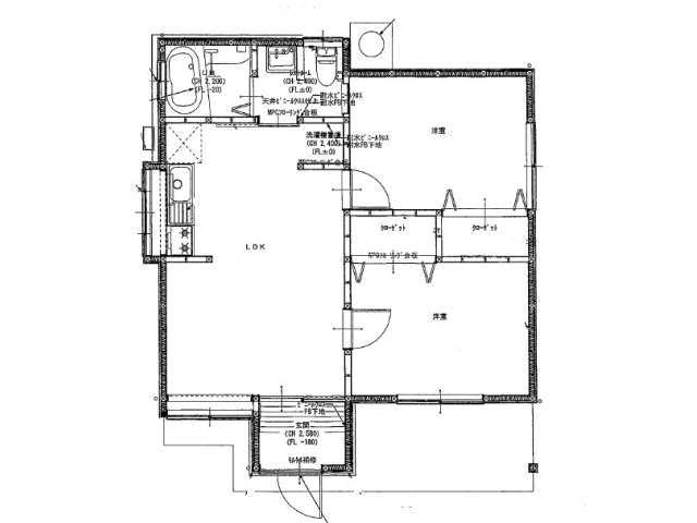
| 詳細間取 | 2LDK (1階:洋6帖×2、1階:LDK11.5帖) | ||
| 周辺施設 | ローソン奥州水沢南大鐘店:350m、ツルハドラック水沢大鐘店:250m、水沢大鐘郵便局:400m | ||
| 駐車場 | 敷地内 無料 | 建物構造 | 木造 地上1階建 |
| 駐車場2台 | 可1台まで | 主要採光方向 | 不明 |
| 仲介料 | 66,000円 | 周辺環境 | |
| 保険又は共済 | 要加入 | 入居可能日 | 即入居可 |
| 保証金 | 築年月 | 昭和47年11月 | |
| 権利金 | 取引態様 | 仲介 | |
| 保証会社 | 利用必須 アーク賃貸保証 初回保証料:月額総額の50%(最低保証料15,000円) 年額保証料10,000円 月額保証料1,100円/月 | ||
| その他費用 | ハウスクリーニング代(税込):55,000円 | ||
| トイレ | 洋式 独立 水洗 | 風呂 | 有 シャワー有 追焚機能付 |
| 設備 | 上水道設備(公営) 下水道設備 給湯(ガス)3箇所 洗面化粧台(独立)(シャワー付) LPガス TV付インターホン エアコン 照明器具 TVアンテナ | ||
| 備考 | 居室に照明器具がない場合、入居者様でご準備お願いします。契約時に家財保険料2年間分18,000円がかかり、2年ごとに更新です。契約期間2年ごとに契約更新事務料20,000円(税別)がかかります。 普通賃貸借 ※同業他社による客付け不可 | ||
| 取扱業者 |
AVANTI ㈱ 岩手県知事免許(4)第2309号 岩手県奥州市水沢台町1-52 TEL:0197-34-1251 FAX:0197-24-6616 (一社)岩手県宅地建物取引業協会会員 東北地区不動産公正取引協議会加盟事業者 |
||







