アパートファミリーハウス2階101号室
情報更新日:2026-03-29
| 所在地 | 間取 | 月額賃料 | 専有面積 バルコニー面積 |
共益費 管理費 |
敷金 礼金 |
|---|---|---|---|---|---|
| 岩手県 奥州市 水沢羽田町駅前 | 3DK | 43,000円/月 |
52.99㎡ ─ |
─ ─ |
1.5ヶ月 64,500円 ─ |
本物件の内容や画像等は全て現況優先とさせていただきます。各画像は参考図となります。
| 交通機関 | JR東北新幹線 水沢江刺駅 徒歩5分 | ||
|---|---|---|---|
| 学区 | |||
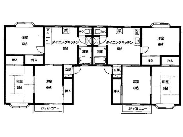
| 詳細間取 | 3DK (洋6帖×2、和6帖×1、DK6帖) | ||
| 周辺施設 | |||
| 駐車場 | 敷地内 無料 | 建物構造 | 木造 地上2階建 |
| 駐車場2台 | 可1台まで | 主要採光方向 | 不明 |
| 仲介料 | 47,300円 (1ヶ月相当) | 周辺環境 | |
| 保険又は共済 | 要加入 | 入居可能日 | 他 (相談) |
| 保証金 | 築年月 | 平成9年3月 | |
| 権利金 | 取引態様 | 仲介 | |
| 保証会社 | 利用必須 アーク賃貸保証 初回保証料:21500円、月額保証料1,800円/月 | ||
| その他費用 | |||
| トイレ | 洋式 独立 水洗 | 風呂 | 有 |
| 設備 | 上水道設備(公営) 下水道設備 | ||
| 備考 | 居室に照明器具がない場合、入居者様でご準備お願いします。契約時に家財保険料2年間分18,000円がかかり、2年ごとに更新です。契約期間2年ごとに契約更新事務料20,000円(税別)がかかります。 普通賃貸借 ※同業他社による客付け不可 | ||
| 取扱業者 |
AVANTI ㈱ 岩手県知事免許(4)第2309号 岩手県奥州市水沢台町1-52 TEL:0197-34-1251 FAX:0197-24-6616 (一社)岩手県宅地建物取引業協会会員 東北地区不動産公正取引協議会加盟事業者 |
||










